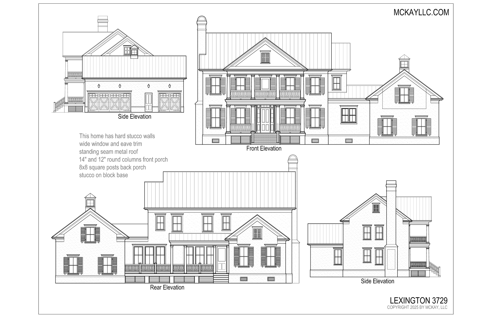
5 bedrooms 5-1/2 bathrooms ensuite in 3729 square feet; 76’ wide x 52’-6” deep
This beautiful 2 story home has 10’ ceilings on the main level and 9’ upstairs. The formal study is distinct from the family spaces for an adult refuge, with areas designated for children located separately upstairs creating a gracious living experience. This home has two laundries and two master suites, upstairs to be with the kids when young and on the main level when older. Huge front and back porches allow entertaining and living on a grand scale while the bespoke stucco exterior and standing seam metal roof provides you with a beautiful and enduring home.
Lexington- 3729
$2,250.00Price
